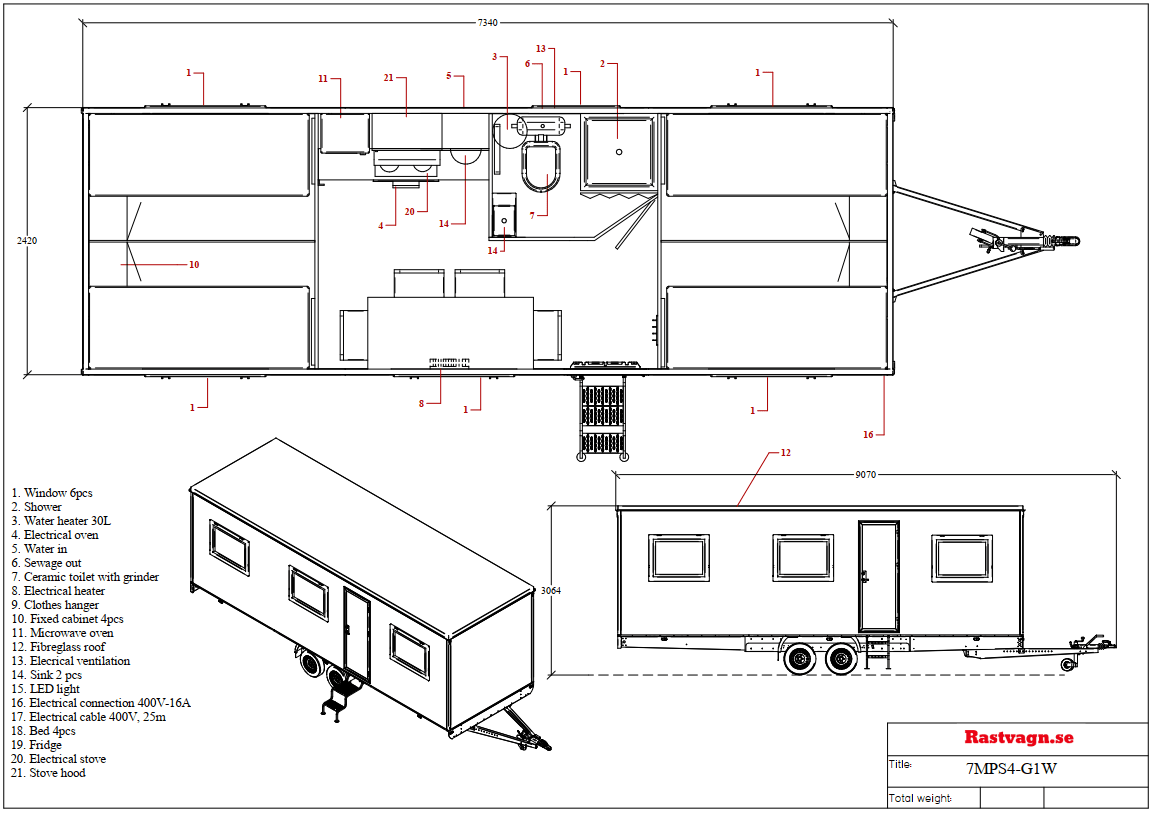
MAJOITUSPERÄVAUNU 7MPS4-G1W
Majoitustraileri 4 hengelle.
– ruokasali
– kylpyhuone
– 4x makuuhuonetta vuoteilla
Perävaunun runko on valmistettu sinkitystä metallista (sinkitys).
Perävaunun laatikko on valmistettu sandwich-materiaaleista, jotka ovat säänkestäviä, lämmönkestäviä ja helppoja puhdistaa.
Säänkestävä sähköjärjestelmä ja valot.
| 50 mm paksu XPS-eristys |
| Galvanoitu runko |
| Kulmatuet |
| Henkari |
| Säädettävä ilmanvaihto |
| Tasapainotetut renkaat talvi- ja kesäkäyttöön (M+S) |
| 400V-16A sähköliitäntä |
| 25 metrin jatkojohto |
| ASSA-lukot |
| Ruokapöytä (kestävää materiaalia) |
| Tuoleja |
| Lämmitys (konvektorit seinässä) |
| Portaat |
| Ikkunat rullaverhoilla |
| Liiketunnistimella varustetut LED-valot |
| Ensiapulaukku |
| Sängyt |
| Vaatekaapit |
| Kalusteet: kaapit, hyllyt |
| Mikroaaltouuni |
| Kahvinkeitin |
| Jääkaappi |
| Uuni |
| Liesi |
| Liesituuletin |
| Pesualtaat |
| Keraaminen WC |
| Suihku |
| Vedenlämmitin |
| Sähköinen ilmanvaihto |
| Peili |
| 1/2" makean veden liitäntä |
| 1" jätevesiliitäntä |
| Sisämitat: 724(P)x231(L)x220(K)cm |
| Kokonaispaino: 2580kg (jarrutettu) |










